00件
最近見た物件
00件
検討リスト
グローバル・ソリューションズ > (賃貸)路線・駅から探す > JR東北本線 > 古河駅 > チョコレートヒルズ古河 > 204
初期費用39,000円キャンペーン、初期費用を抑えたい方におすすめ
| 所在階 | 賃料 | 管理費 | 敷金/礼金/保証金/償却/敷引 | 間取り | 専有面積 | 詳細 | 検討リスト |
|---|---|---|---|---|---|---|---|
| 2 | 4.7万円 | 5,000円 | 0ヶ月/ 0ヶ月/ -/ -/ - | 2DK | 47.77㎡ | 詳細を見る | 追加する |

| 所在地 | 茨城県古河市古河143-5 | ||
|---|---|---|---|
| 交通 | |||
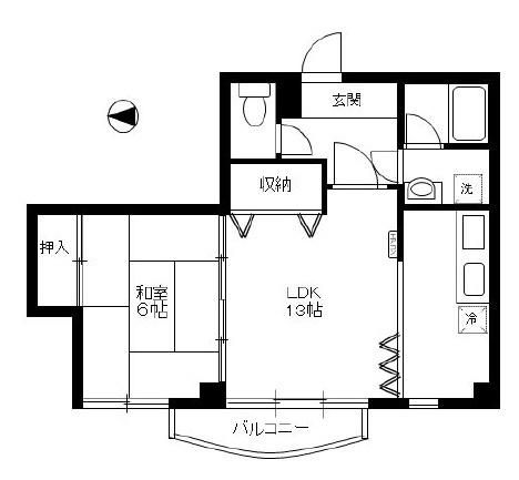
| 間取り/詳細 |
1LDK LDK 13.0帖/和室 6.0帖 |
面積/バルコニー面積 | 47.06㎡/- |
| 賃料 | 4.5万円 | 管理費・共益費 | 5,000円 |
| 敷金/礼金/保証金 | 0ヶ月/0ヶ月/- | 償却/敷引 | -/- |
| 更新料 | 1ヶ月(新賃料) | 敷金積み増し | - |
| 権利金/雑費 | -/- | 駐車場/月額料金 | 近隣/5,500円 (税込) |
| 保険加入/料金 | 無/- | 保険名/保険期間 | -/- |
| 保証人代行義務 | 必加入 | 保証会社 | その他 |
| 保証会社詳細 | (大手法人契約除く)オセロ(初回:総賃料の50%/継続保証料:1年毎に1万円)外国籍GTN(初回:総賃料の100%/+敷金1ヵ月/月額1,000円/引落手数料330円) | 向き | 東 |
| 築年月(築年数) | 1991年 1月 (築34年) | 契約期間 | 定期借家 2年 |
| 種別/構造 | マンション/鉄筋コンクリート | 部屋/所在階/階建 | 204/ 2階/ 4階建 |
| 総戸数 | 20戸 | 現況/入居可能日 | 空家/即時 |
| 特優賃 | - | 取引態様/賃貸区分 | 貸主/定期借家権 |
| 物件番号 | 82543454 | 取引条件の有効期限 | 2025年11月12日 |
| 設備条件 |
|
||
| 備考 | LDK13帖の1LDK、仕切れば2Kとしても利用可 | ||
| 条件(その他) | 鍵交換代:1万9,800円 ライフサポート24:1,320円(月額) ■普通借家契約(更新料:新賃料の1ヵ月) ■24時間サポートダイヤル(ライフサポート24:月額1,320円) ■短期解約違約金あり(1年未満解約 違約金2ヶ月・1年以上2年未満解約 違約金1ヵ月(賃料+管理費)) ■照明・ウォシュレットは残置物となります | ||
| 取扱会社 |
|
||
| QRコード |
このQRコードを読み取ることで、スマホでも物件情報を確認できます。 |
||
※地図上に表示される物件の位置は付近住所に所在することを表すものであり、実際の物件所在地とは異なる場合がございます。
古河市の町名から探す
古河市にある駅から探す
チョコレートヒルズ古河周辺の駅から探す